
パン屋さん – P’38 (pain38)
福岡県糸島市の海辺にあるパン屋さん「P’38 (pain38)」。コンテナハウスを利用したおしゃれな店舗です。
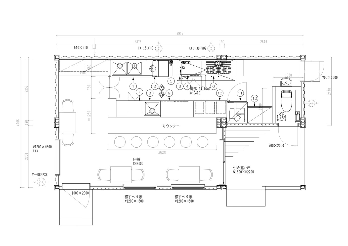
「Primo Passo(プリモパッソ)」は長野県上田市の中心市街地にあるシェアキッチンです。業務用キッチンとイートインスペースを併設しており、飲食店開業前の腕試しや、建築用コンテナでの飲食店開業に挑戦したい方など、起業家の方々のテストプロモーションの場として運営されています。
店舗として40フィートハイキューブコンテナ(12.192m×2.438m×2.896m)と20フィートハイキューブコンテナ(6.058m×2.438m×2.896m)を2台ずつ利用しています。
店名の “Primo Passo(プリモパッソ)”はイタリア語で「最初の一歩」の意味。
新しいアイデアや新事業のチャレンジの場として利用されているコンテナハウス型店舗で、1時間単位での利用が可能です。
広いジャンルに使える業務用キッチンを備えており、飲食店営業許可と菓子製造業許可を取得しているため、飲食店開業を目指す方が「お試し出店」の場として利用できます。
長野朝日放送「未来をつくるコンテナハウス~新時代の建築革命~」
Primo Passoは上田市において2025年3月にオープン。
業務用キッチンを完備したコンテナハウスのシェアスペースで、飲食店のお試し出店などに活用できます。
外観の色を選べたり、異なるサイズのコンテナを組み合わせて設計できるなど、デザインの自由度の高さは建築用コンテナハウスの魅力の1つです。
コンテナどうしを横に並べるなど工夫をすることで閉塞感のない空間を実現できます。
お客様にとって居心地のよいスペースになるようなデザインがこだわり。窓の高さは1センチ単位で調節。
様々な飲食店を訪ね、カウンターの最適なサイズを探求。コンテナの設置からオープンまで約2カ月。短い工期が魅力です。
飲食店をやりたいと思っている方に使っていただきたいキッチンということもあり、本格的でしっかりとした厨房です。
コンテナだから無理ということはなく、サイズをしっかり計算することで大きな換気扇も設置可能です。
スチームコンベクションオーブンは評判です。店内では火やオーブンを使いますが、エアコン1台でも十分に涼しく快適です。

福岡県糸島市の海辺にあるパン屋さん「P’38 (pain38)」。コンテナハウスを利用したおしゃれな店舗です。

福岡県柳川市にあるアクアリウムショップ&カフェ。ブルーとホワイトのコンテナハウスを店舗として利用しています。店舗どうしをウッドデッキで接続しています。

北海道岩見沢市毛陽町にあるコンテナカフェ。濃いブルーグレーのコンテナハウスと木製のドアが目印の店舗です。2台の40フィートハイキューブコンテナを使用しています。

上富良野・日の出公園のふもとにある香港・マカオ風のファーストフード店。イエローとブラウンに塗り分けられたコンテナハウスが目印の店舗です。

長野市にあるコンテナハウス型のカフェ。店舗の隣にウッドデッキ型のイートインスペースと雑貨屋を併設。ふわとろプリンとモンブランが名物です。

福岡市の広島お好み焼きダイニング&カフェ。ブルーのコンテナを繋いだ個性的な店舗です。広島お好み焼きに加えて本格的な一品料理やクラフトビール、多種多様なお酒を提供しています。

福岡県福津市にオープンしたテイクアウト主体のコンテナショップ。店舗には20フィートコンテナを1台利用。健康的なミソスープに手作りのお弁当やおにぎり、スイーツ、レトルト惣菜などを販売。

コンテナハウスのおしゃれなカフェ。3 年間限定で恵比寿西1丁目交差点の遊休地を活用し、移動可能なコンテナを活用して地域を盛り上げるイベント&カフェスペース。恵比寿という場所で地域に根付き、地域の文化を発信し、地域に貢献することが目的。