
セレクトショップ – unionplus.
長野県・上田市にあるセレクトショップ。2台の建築用コンテナハウスを接続したスタイリッシュな外観と、スチールとウッドが融合する内装を特徴とする店舗です。
コンテナハウスに興味がある人の多くは、ガレージライフや趣味空間、仕事場としての自由度に惹かれているのではないでしょうか。
今回紹介するのは北海道札幌市のJR琴似駅近くに誕生したコンテナ建築「UniCon Base(ユニコンベース)」です。このプロジェクトは「大人の秘密基地」をコンセプトに、ガレージと居室を組み合わせたコンテナ建築として立案されました。
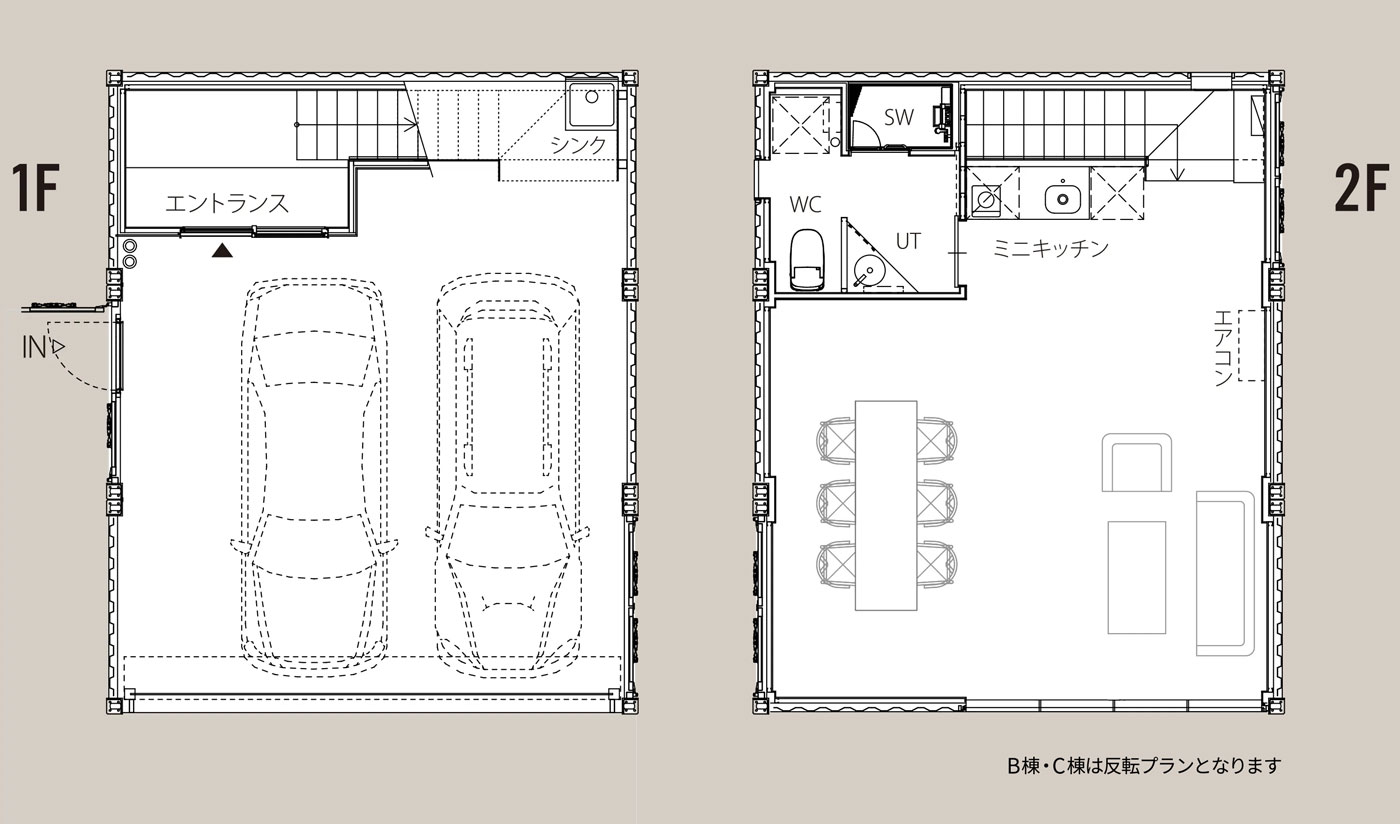
鉄骨造りの2階建て、全4棟。各棟の1階がガレージ(42.05平方メートル)、2階がオフィス(42.05平方メートル)、延べ床面積は84.1平方メートル(25.44坪)です。ビジネスの拠点としてはもちろん、アトリエ、スタジオ、セカンドハウスなど様々な用途に利用可能です。
UniCon Baseは、札幌市西区琴似エリアの鉄道高架下に建設された、鉄骨造2階建てのコンテナ建築です。外観は無骨でインダストリアルな雰囲気がありながら、内部はしっかり生活・作業に対応できる仕様になっています。
最大の特徴は、1階を「ガレージ」、2階を「居室・ワークスペース」として明確に分けた設計であることです。
UniCon Baseの1階は、車2台を収納できる広さを持つインナーガレージになっています。しかも単なる駐車場ではなく、電動シャッターやガレージ用シンクなどが備えられており、車やバイクのメンテナンス、DIY、アウトドアギアの整備など、趣味の基地として実用性が高い設計となっています。
2階部分は居室・オフィス用途として使える空間になっており、設備としてトイレ、シャワー、ミニキッチン、冷暖房エアコンなどが設置されています。重要なのは、UniCon Baseが「倉庫的なコンテナ」ではなく、生活や滞在、ビジネスを前提にした建築になっている点です。
コンテナハウスに興味がある人の中には、
と考える方も多いと思いますが、UniCon Baseはその欲求を満たす設計になっています。
UniCon Baseは、単なるコンテナを置いた簡易施設ではなく、設備面も含めて「建築」として非常に完成度の高い空間になっています。これからコンテナハウスを検討する人にとって、UniCon Baseは「コンテナで何を実現したいのか」を具体化するヒントを与えてくれる事例です。

長野県・上田市にあるセレクトショップ。2台の建築用コンテナハウスを接続したスタイリッシュな外観と、スチールとウッドが融合する内装を特徴とする店舗です。

福岡県大野城市にあるバイクショップ「SPACE MOTOR COMPANY」。コンテナハウスを利用した2階建ての店舗です。

福岡県柳川市にあるアクアリウムショップ&カフェ。ブルーとホワイトのコンテナハウスを店舗として利用しています。店舗どうしをウッドデッキで接続しています。

佐賀県鳥栖市のアウトドア・キャンプグッズのセレクトショップです。2台のコンテナハウスを接続し店舗として活用しています。

福島県石川郡の農業生産法人が運営する店舗兼オフィス。コンテナハウスを利用したオリジナリティあふれる空間です。はちみつを与えて育てた「石川はちみつ牛」を中心に様々な加工品を販売しています。

ブラックコンテナを使用した迫力の外観。どこか懐かしい家具や雑貨、DIY用のアイアンパーツを製造・販売。床と壁に古材足場を多用。1950年創業の金属加工で培った技術。